Speargrass House / Sumich Chaplin Architects
© Simon Devitt




+ 9
Area
Area of this architecture project
Area:
625 m²
Year
Completion year of this architecture project
Year:
2024
Photographs
Lead Architect:
Matt Chaplin
© Simon Devitt
Text description provided by the architects. Our client relocated from Sydney, Australia to Queenstown, New Zealand, and wanted a family home and lifestyle to raise their young boys. They wished to create an environment that immersed their family in rural living with the opportunity to take full advantage of farm life and the activities on offer in the Wakatipu community.
© Simon Devitt
The site is a 35-hectare property located on Speargrass Flat Road. It is elevated in a majestic location above the Wakatipu Basin. The outlook is dramatic with a north aspect to Coronet Peak and a stunning south aspect to the basin below with The Remarkables mountain range beyond.
© Simon Devitt
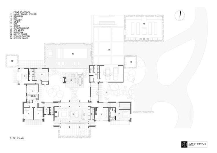
The house is set on a natural plateau up a steep incline above Speargrass Flat Road. The design response was to plan a series of single-level structures on the plateau around a central north-orientated courtyard with the main living space opening to both the north and south aspects. The intention was to create at a domestic scale within a dramatic rural landscape.
© Simon Devitt
Floor Plan
© Simon Devitt
The forms are traditional in shape but have a hierarchy based on height and materiality. The main living and bedrooms, being the highest forms, are clad in schist rockwork and stained cedar. The schist cladding is washed with mineral paint, light in color. This is in reference to the historic limewashed stone dwellings on the neighboring property.
© Simon Devitt
The roof of the main living form opens to the views both north and south, with an inverted gable referencing an old deer-run structure that was found on the property on the first site visit. The secondary forms of the garage and guest are clad in the weatherboards only. All forms are linked together by triple-glazed flat-roofed galleries and natural rock landscape walls.
© Simon Devitt
South Elevation and Section
© Simon Devitt
Material – The two main cladding elements are band sawn Cedar weatherboards stained in a washed Cedar color and schist stone completed in a buttered-up style and finished with a white wash paint, similar to the finish used at the historic neighboring Thurlby Domain. Both these materials and treatments were used historically and are currently utilized for buildings in this region. The roof and chimneys are completed in a dark-colored metal tray roof with an LRV of less than 36%. The window joinery is aluminum and triple-glazed.
© Simon Devitt





