A Dark Brick Exterior For A Home Surrounded By Trees

Scott Posno Design has shared photos of a modern home they completed in Vancouver, Canada, that showcases a dark brick exterior.

The house presents a series of stacked, dark brick volumes that create a strong geometric presence, evoking strength and privacy.

The home also features overlapping forms, giving it a modern, sculptural feel.


At the rear of the home, doors and stairs connect the interior spaces with the outdoors, where there’s a swimming pool, outdoor lounge, and BBQ area.



A large and dark front door opens to the entryway with a wall sculpture and bench.

Inside, there’s a serene interior palette of oak floors, oak windows, and oak millwork, complemented by natural stone finishes throughout. Abundant natural light streams through large southern-facing windows.

The home has both a living room and a family room, both with comfortable furnishings and wood accents.

A wood kitchen has integrated appliances and a large island. Nearby there’s a casual banquette dining area and the open plan dining room.

The home also includes an office with vertical wood walls.

A standout architectural feature is the grand oak staircase, which spirals around a suspended three-story glass chandelier. The staircase rises to a large skylight, flooding the centre of the house with sunlight while providing a visual connection between all levels.


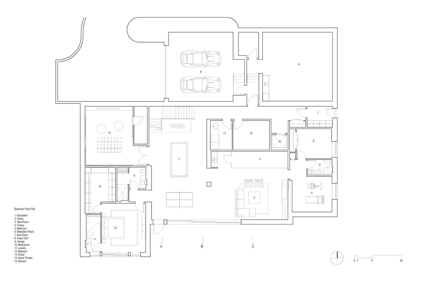
The lower level of the home serves as an entertainment hub, complete with a golf simulator, theatre room, three bedrooms, and two bathrooms


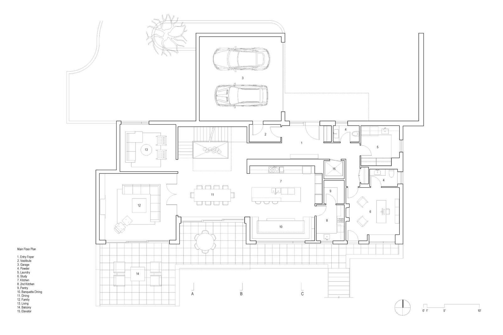
Floor Plans



Site Plan

Elevations




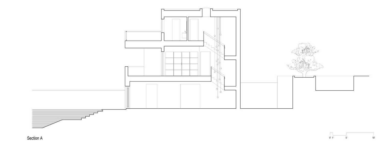
Sections



Photography by Sama Jim Canzian | Architecture, Interior Design, and Landscaping: Scott Posno Design | Builder: Powers Construction | Structural Engineer: Allester Engineering | Landscape Contractor: Fossil Landscapes


