Sports Center in Montserrat // Bordas+Peiro Architecte
Text description provided by the architects.
The architectural proposition is based on four project strategies to give the future sports center its unique character._ImplantationThe volume fits into the future green parc running along the city’s river. Located at a certain distance from the urban fabric, the future pavilion is located in a north-south axis for two reasons : Environmental, for energy efficiency.

© Bordas+Peiro Architecte

© Bordas+Peiro Architecte
Symbolic, because the disposition allow an implantation in the city with a real scale of Greek temple._Order, volume, materialsThe volumetry follow an architectural order reinforcing the singular character of the building. Made with five opaque parts and four translucent ones, an autonomous volume representative of its use is generated.
The main facade is made up of a glazed base to see the activity.

© Bordas+Peiro Architecte

© Bordas+Peiro Architecte
Above, the opaque (brick) / translucent (brick moucharabieh) alternation gives the pavilion an autonomous shape ; naturally enlightened by day and urban lantern by night. The materiality is justified by the strong Valencian tradition which made and used these elements in the past._Respect of environment, comfort in useThe process was realised following energy efficiency criteria.

© Bordas+Peiro Architecte

© Bordas+Peiro Architecte
Exterior and interior designs offer subtle insulation and ventilation systems.
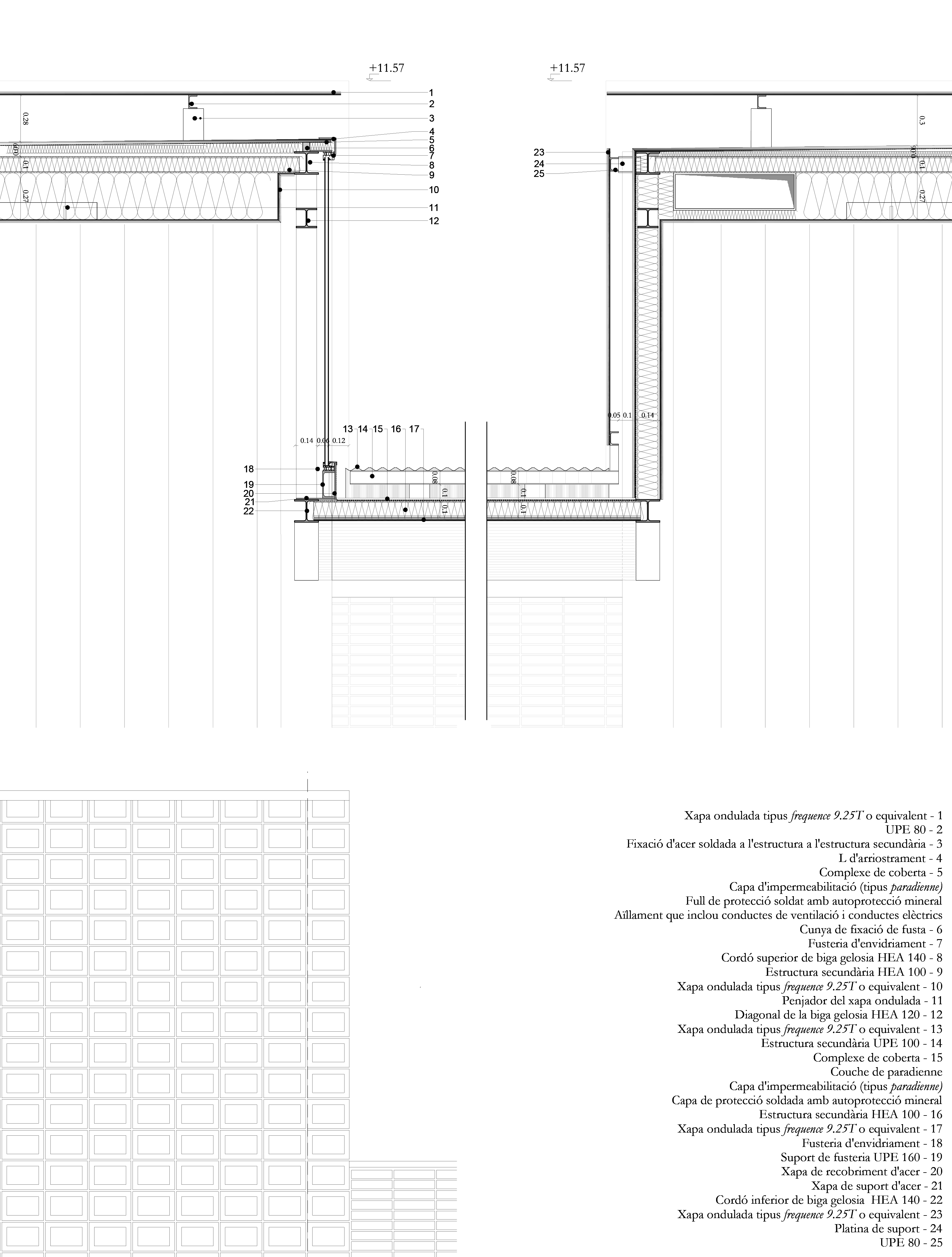
Some north-facing sheds allow natural light to enter uniformly, optimizing the eletric consumption. The height of the basement prevents direct sunlight on the track._Constructive thought, the geometric order married to the constructive orderThe project offers simple structural and constructive systems.

© Bordas+Peiro Architecte

© Bordas+Peiro Architecte
The structure is configured from the repeating rhythm of the metal trellises used to fabricate a relevant architectural form. All construction processes follow proven techniques, with assembly times mastered and known. The systems are respectful of construction costs and deadlines..

© Bordas+Peiro Architecte

© Bordas+Peiro Architecte


