SISTERS residential building // Studio Saheb
Text description provided by the architects.
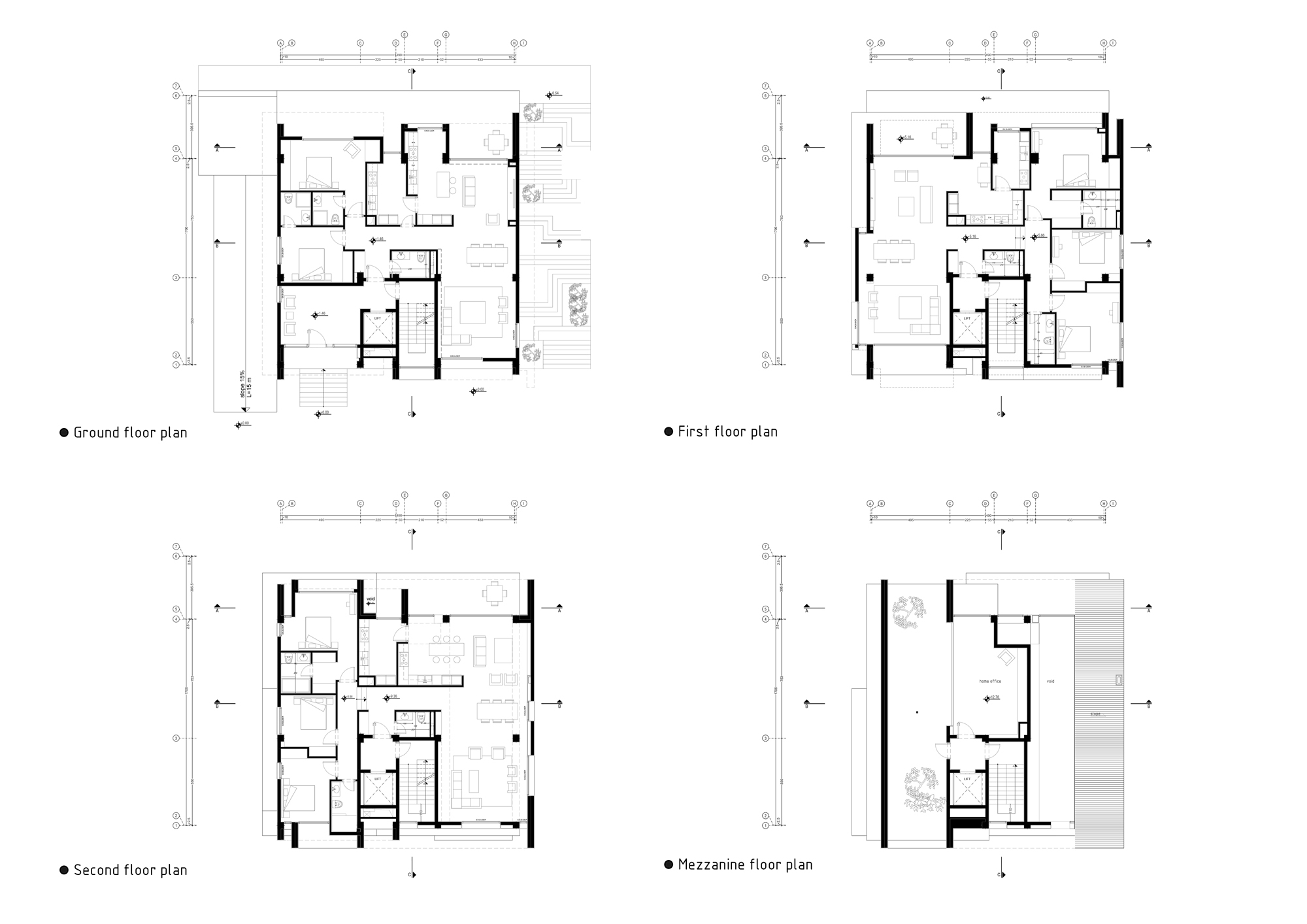
This project is a 3 story residential building for two sisters and their mothers in a very unique and beautiful site in Damavand which a small river defines one of its boundaries.

© Studio Saheb

© Studio Saheb
Each person wants a separate unit, ground floor for the mother of family and above (first & second floors) belong to the sisters.

© Studio Saheb

© Studio Saheb
The whole idea to develop this project comes from its site and clients, we considered this project in its most abstract way as a three surfaces which represents living territory for each person, then we fold and intertwine these surfaces together in one direction toward the great view and also toward the river on the border of the site, then what we confront was the possibility to create living spaces in-between these surfaces, so surfaces together make the whole project like the real life of this great family which they support each other in every cases.

© Studio Saheb

© Studio Saheb
.

© Studio Saheb

© Studio Saheb


