Casa en Cañada // EMA Espacio Multicultural de Arquitectura
Text description provided by the architects.
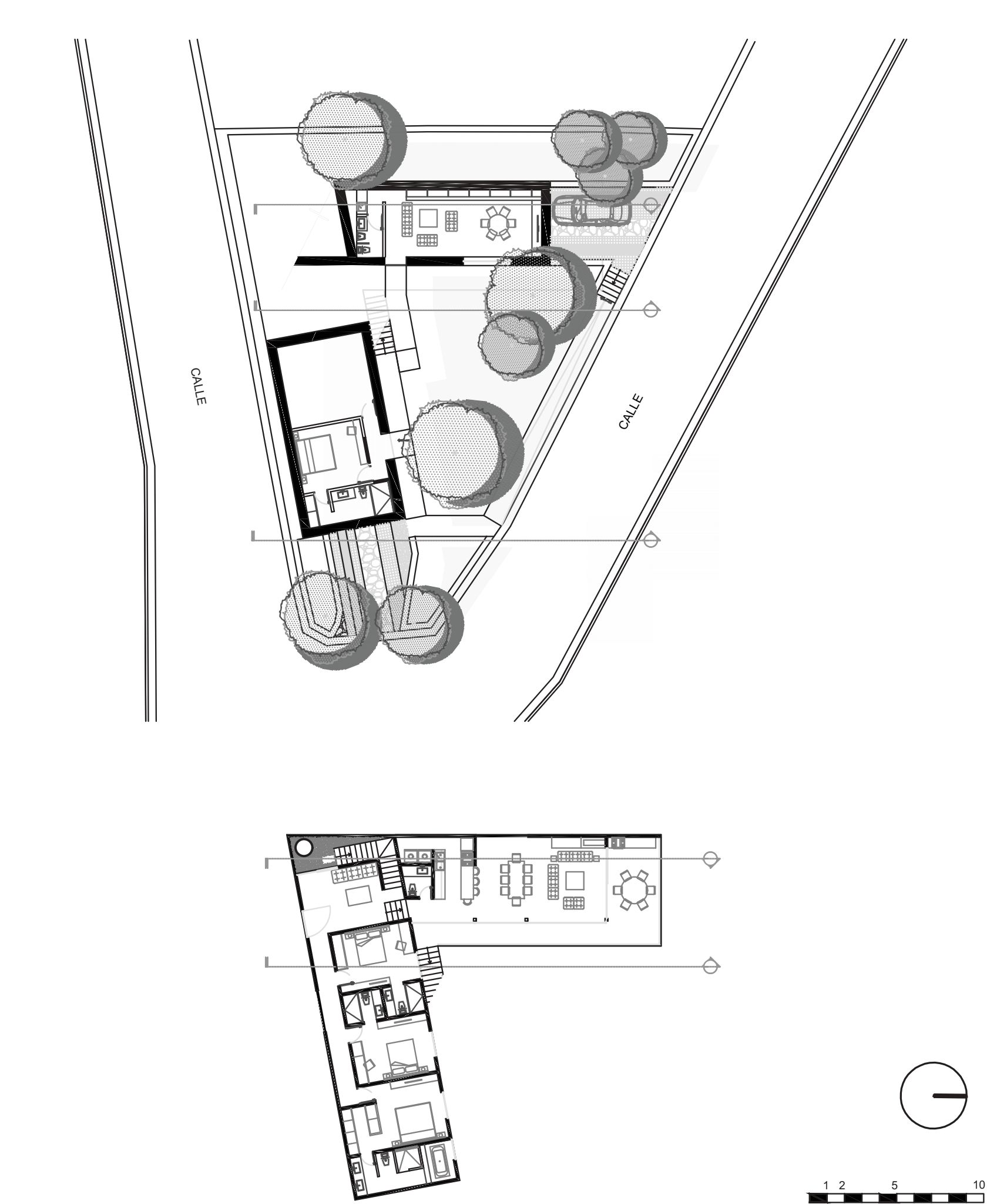
El proyecto se ubica a las afueras de Mazamitla en una zona baja boscosa dentro de un terreno triangular circundado por 2 calles con un desnivel de 9 metros.
El contexto rocoso, la niebla, el cielo con sus distintas tonalidades a través de los pinos son premisa e inspiración constante para el desarrollo de la casa.

© EMA Espacio Multicultural de Arquitectura
El proyecto se plantea a través dedos volúmenes en desniveles que se adaptan a la topografía del sitio, respetando todo el arbolado existente y abrazando un espacio verde cohabitado por tres pinos de gran altura.
El planteamiento del proyecto es encontrarse con las distintas vistas y atardeceres que la naturaleza nos ofrece.

© EMA Espacio Multicultural de Arquitectura
Un volumen cerrado hacia la calle superior ubicado sobre un basamento de piedra, contiene el ingreso principal , un patio y las tres habitaciones dejando a su vez un espacio inferior para una habitación de visitantes que se accede desde los andadores y plazoleta exterior.
Un segundo volumen nace desde el nivel de la calle superior y termina volando sobre la calle inferior, albergando las areas de estar y una serie de terrazas que miran hacia el bosque y nos acercan ala copa de los pinos.

© EMA Espacio Multicultural de Arquitectura
En la parte inferior de este volumen en voladizo soportado por muros de piedra, se encuentra un espacio social con una cava, en relación directa con el espacio verde central cuyo acceso es a través de los andadores y escaleras exteriores.
Uno de los retos del proyecto era poder conectar todo el programa de manera accesible por medio de rampas y andadores desde el punto más bajo del estacionamiento hasta el punto más alto del ingreso principal.

© EMA Espacio Multicultural de Arquitectura
.

© EMA Espacio Multicultural de Arquitectura





