Yada Theatre // GOA
Text description provided by the architects.
Yangxian Xishan was born at a time when the construction of small town was turning from feverish pursuit of profits to rational development. It is a well-planned field experiment by developers and architects in the contemporary context of urbanization, and also the first town development project that is expected to realize “opening in the whole region and self-operation”.

© GOA

© GOA
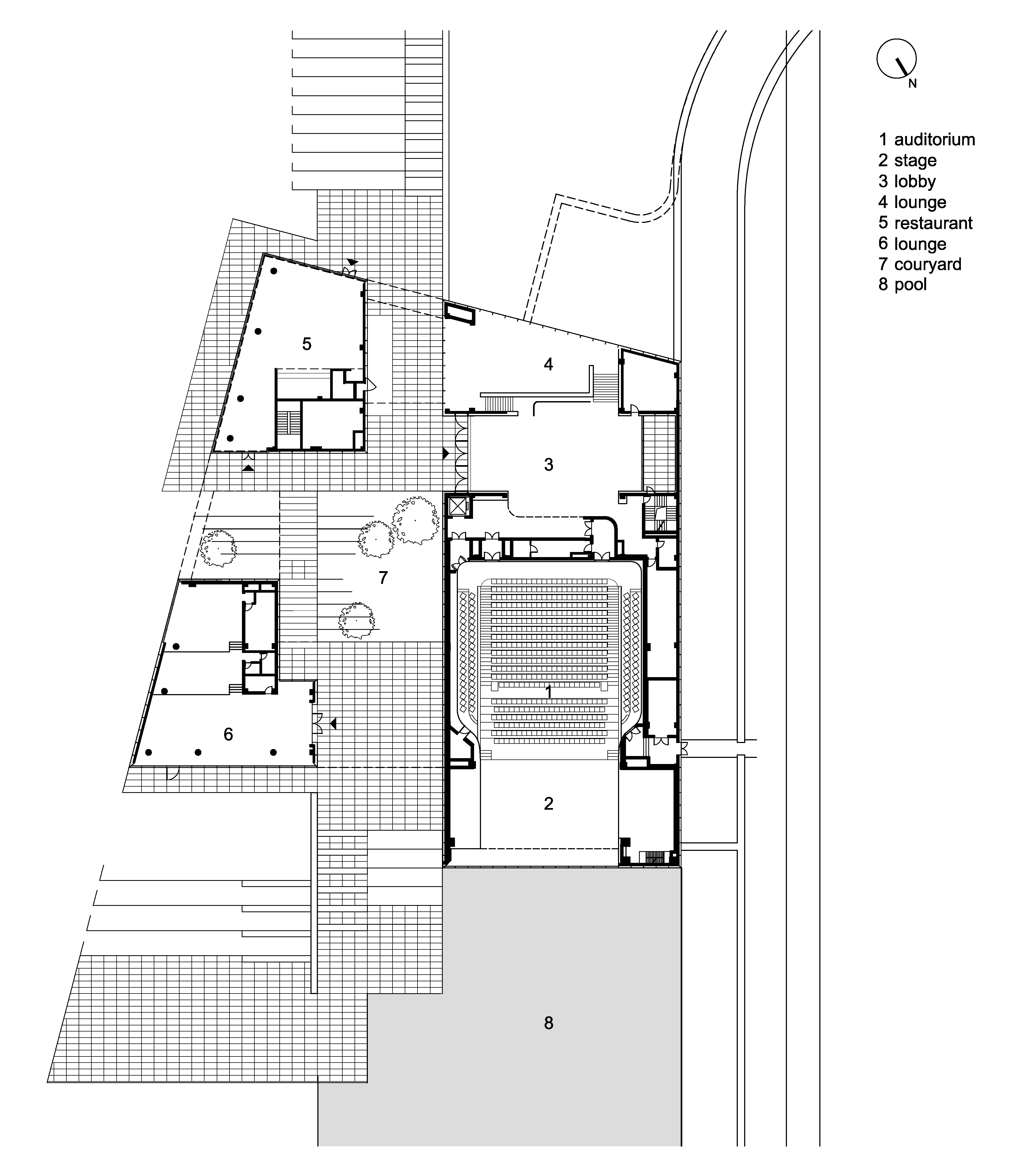
Yada Theater is a cultural building in the town for residents and visitors.
Different from many buildings for performing arts in cities, Yada Theater located among green hills and tea fields is a true “theater in nature”. Based on the advantaged natural conditions, the design of Yada Theater, instead of adopting the “closed box” approach, interprets a unique experience blending art with nature for visitors from the perspective of “openness”.

© GOA

© GOA
The design draws on the cultural allusions of the literati collection in the Song Dynasty to create a contemporary cultural landmark located in nature. After completion, the theater will serve as a venue not only for performing arts activities in the town, but also for residents’ cultural life.
The central courtyard is the core of the theater, interspersed with a series of grey spaces.

© GOA

© GOA
To interpret “local characteristics”, architects studied local building materials, and finally selected the grayish green ceramic panels produced in Yixing as exterior wall materials, creating a simple and elegant atmosphere. The 530-seat multifunctional auditorium can realize transition between open and picture-frame stages, meeting the needs of professional performances such as concerts and dramas and adapting to the scenes of other cultural events.

© GOA

© GOA
A floor-to-ceiling glass curtain wall is used creatively in the stage background, which makes you feel as if you are sitting in a “Song-style couch” set in tea fields and water features.
As the project adopts integrated design, the design team, apart from the architectural, interior and landscape design, reviewed the integration effect of the illumination and curtain wall design as well as the special design of the auditorium, stage, lighting and acoustics, which is a new and meaningful attempt..

© GOA

© GOA







