Sandwash Apartment / Architectkidd
© Luke Yeung




+ 21
Area
Area of this architecture project
Area:
140 m²
Year
Completion year of this architecture project
Year:
2025
Photographs
Lead Architects:
Luke Yeung
© Luke Yeung
Text description provided by the architects. In the bustling and ever-evolving construction landscape of Southeast Asia, the recent earthquake prompted us to re-evaluate our approach to building design. A prevailing trend in modern renovation and construction favors thin, lightweight materials – often chosen for their superficial aesthetic and glossy veneer. Would it be possible to instead design with robust, minimally processed, and long-lasting materials?
© Luke Yeung
© Luke Yeung
One building material often gets overshadowed by its more glamorous counterparts in Thailand. Sandwash is a mixture of stone, gravel, and cement, typically combined on-site. It involves mixing aggregates into cement, then “washing” away the outer layer to create a textured and rustic finish. Because of its utilitarian origins, sandwash is an overlooked building material. It was once commonly used for outdoor floors and walls, particularly in homes, schools, and temples in Thailand. It can still be found in worn-out public areas and neglected buildings, and many view sandwash as outdated and unfashionable material.
© Luke Yeung
© Luke Yeung
© Luke Yeung
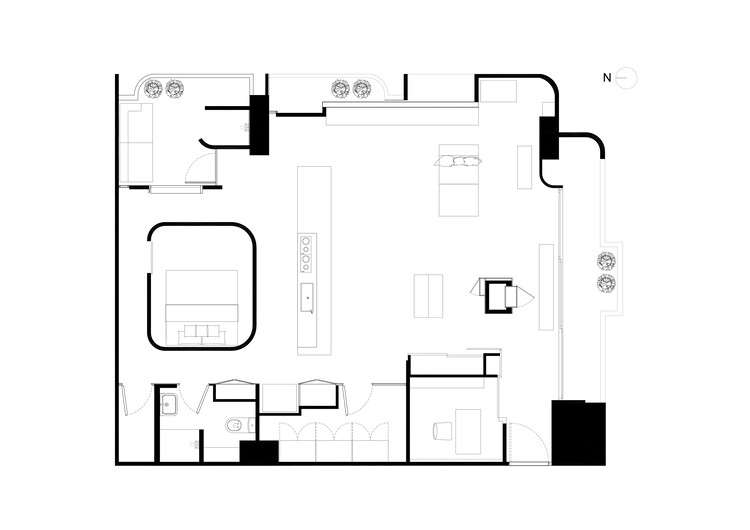
Floor Plan
© Luke Yeung
Located in an early-generation high-rise building in Bangkok, this apartment unit enters a new chapter as a modern residence. The main interior space is stripped away to expose the concrete structure, while sandwash is used to establish a visual and tactile connection with the existing architecture. Using sandwash as the primary material offered us the opportunity to create distinct textures and appearances. Most of the materials were produced on-site by local workers using small-scale ingredients and hand tools, making the construction more energy-efficient and cost-effective.
© Luke Yeung
© Luke Yeung
Raw, durable, and resilient, sandwash cement became a creative interior finish. Sandwash allowed for the creation of curved angles and forms that would be more challenging with solid stone or brick. Its ability to mold into smooth shapes added an extra dimension to the interior design, offering versatility in creating dynamic interior spaces.
© Luke Yeung
© Luke Yeung
This exploration of sandwash techniques is about rediscovering a material that once played a key role in tropical architecture — a material that may have been forgotten. While it may not be the flashiest or most celebrated, sandwash serves as a reminder that sometimes the simplest materials endure the longest. By departing from lightweight construction approaches and finishes typically found in other renovations, the project serves as an interior design prototype that balances preservation and upcycling with robust building materials.
© Luke Yeung




