The Concrete Cloud, Bayan Club // S.PIN ARCHITECT
Text description provided by the architects.
THE SITE & THE BRIEF
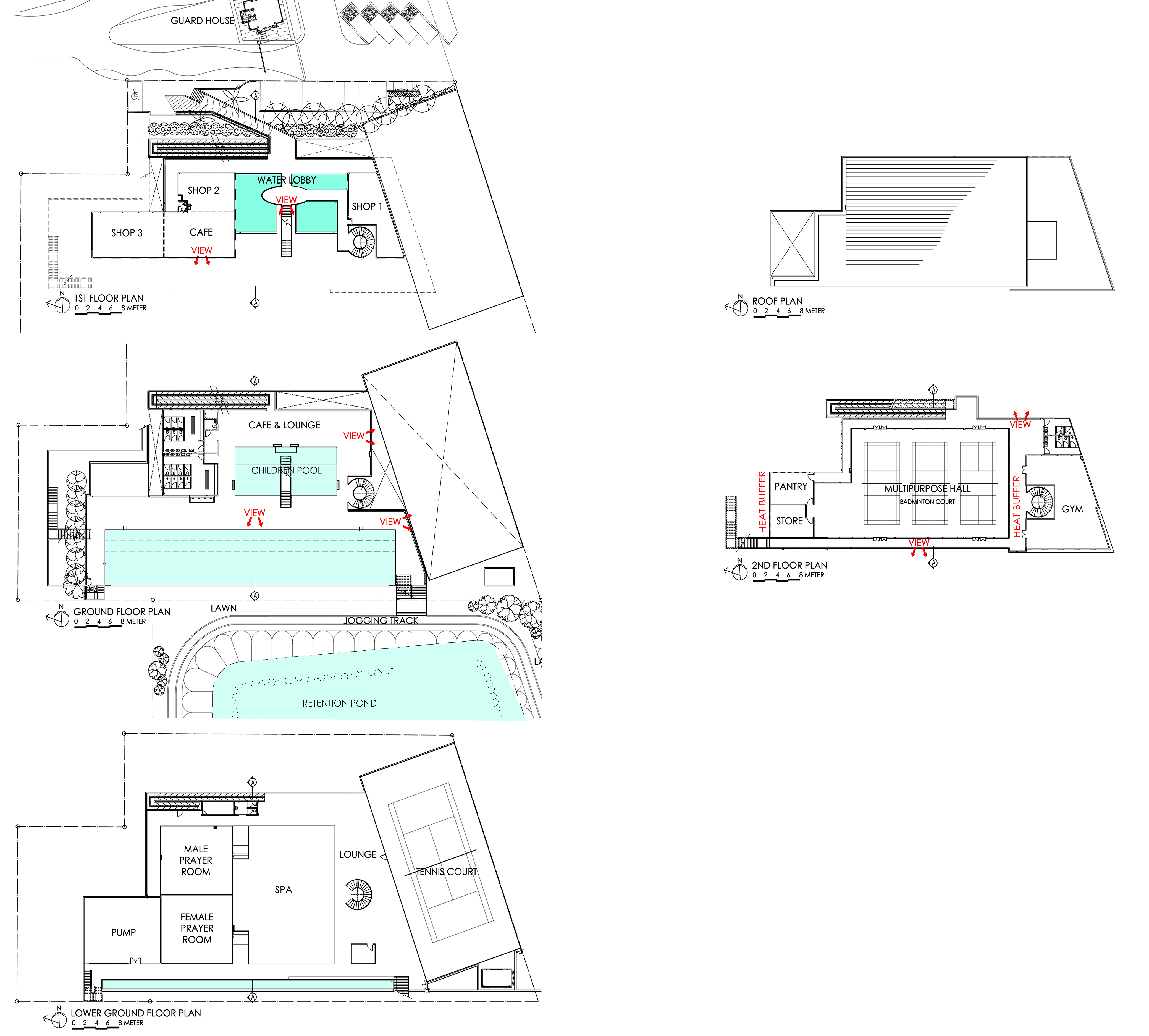
Bayan Club is located at Seri Kembangan, a middle class sub urban in the state of Selangor, Malaysia. The sqft 4 storey building offers sport & commercial facilities to the residents of the surrounding areas. The sport facilities consist of a swimming pool, a children pool, a tennis court, 3 badminton courts & a gym.The site is on a small hill with the land profile gently lowering down towards the south eastern side.

© S.PIN ARCHITECT
There are residential blocks to the north whereas a retention pond & a valley situated at the south. The main access is from the north boundary. Due to this topography, the site receives constant breeze from the lower part of the land profile. The architect discovered that any solid build form will block the breeze that blows towards the residential blocks and prevent the disperse of heat island effect at the residential blocks.THE CONCRETE CLOUD The architect believed the building have to be lifted up in order to let the breeze thru.

© S.PIN ARCHITECT
Taking cue from the tropical overcasting cloud, the architect explores the concept of forming a heavy cloud form at the building top, enabling the spaces below to be porous & open, protected from the tropical warm & humid weather. The design goes against the grain by stacking the space that require the least natural air movement on top, namely the hall with badminton court (the game requires no air movement), leaving the lower 3 levels skeletonised with spaces split into pods & voids.

© S.PIN ARCHITECT
Constant hill breeze penetrates the porous spaces & continues towards the town houses at the back. 2 design strategies have been adopted to cool-down the breeze:1. Having the ‘cloud’ to cast deep shade to the porous spaces below2. Introducing water elements at each open floor, namely; the water lobby, the swimming pool & the children pool and the retention pond with water cascades down from one water elements to other water elements at the lower levels.Hence, the ‘Concrete Cloud’ :1. enables 70% of the building naturally ventilated 2. creates a cooling microclimate within the club that is 1 – 2 degree cooler than the surrounding temperature.

© S.PIN ARCHITECT
The ‘Concrete Cloud’ has the following self-cooling design too, it is indeed a ‘Cooling Cloud’: 1. The material: alumimium louvre panels, which has weaker heat conduction property, was chosen over brick as the envelope. 2. The double ‘C’ frame with vertical bold parts directed to west, shading the top floor recessed louvre wall & glass wall from afternoon sun.
3.

© S.PIN ARCHITECT
The insulated metal roofPart of the ‘Concrete Cloud’, the gym, located at the cantilever edge facing panoramic view. However the east side glazing is kept minimal. The multi-level open design on the north-east consists of lounge & cafe that overlook the tennis court. West elevation with minimal opening houses store & pantry.

© S.PIN ARCHITECT
This elevation acts as afternoon heat barrier .VISUAL DIALOGUE WITH NATURE : 3-TIER INFINITY VIEW Due to the land profile, one enter the building via the mid level thru a ramp. Filling the entrance lobby with water, the architect creates 3-tier infinity view from the lobby towards the swimming pool infinity fall below & the retention pond beyond.

© S.PIN ARCHITECT
The flanking shops enjoy 3-tier infinity view as well. One walks ‘into’ the water at the lobby to reach the swimming & changing level below. This manipulation enhances the user spatial experience
GREEN DIALOGUE WITH NATURE : 3-TIER MOVING WATER The lobby infinity fall, the children pool & the swimming pool below, the retention pond beyond cool down the wind that penetrates thru the building porous part, under the shade of the ‘concrete cloud’.
The lobby water fall also serves as the children pool water feature below.

© S.PIN ARCHITECT
At the same time,
the swimming pool infinity fall become part of the water feature for the lower ground shops below pool. With that, the architect managed to use only 2 sets of pump & filter unit to operate the multi-tier water elements. The multi-cascading water makes 10% of the building surface fluid & dynamic.LOUVRE WALLS WITH DAYLIGHT MAGICThe cooling ‘Concrete Cloud’ is a multi-purpose hall cum badminton hall.

© S.PIN ARCHITECT
Conventional badminton hall calls for black box design but the architect devised a twist out of the game requirement by introducing additional volume on top of the playing volume in the hall. This enables the play of natural light above the playing volume and at the same time creates magic in the hall when it is used as multi-purpose hall.

© S.PIN ARCHITECT
The louvre wall & glass panels are sealed as the badminton game requires no air movement. SOCIAL DESIGNPorous spaces with minimal walls enable multiple visual connections, encourage the users which mostly from the same nearby community to mingle.PROJECT SIGNIFICANCE & IMPACTThe dialogue with nature thru the carefully orchestrated spaces enables appreciation of the site context openness in a dramatic sequence.

© S.PIN ARCHITECT
The “Concrete Cloud’ concept together with void, layer & screen enable one to have spatial romance with the nature & weather in the club house, saving substantial energy & operation cost at the same time..

© S.PIN ARCHITECT



