Rhotenberry Wellen Architects Designs West Texas Vernacular Barn A Home for Horses
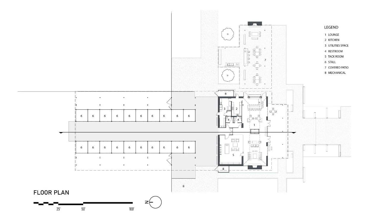
A Home for Horses – An owner came to us with the thought of recreating childhood memories of her family growing up enjoying the sport of polo. Beyond the basic requirements of the facility, the building is rooted in a West Texas vernacular. Deep overhangs protect both interior spaces and building users. Materials are robust while maintaining a delicate nature. Lighting for the facility was imagined as a glowing lantern sitting on the plains of West Texas and the neighboring polo fields. Material pallets were keep to a minimum. Corrugated self weathering steel and concrete comprise the majority of the exterior elements, while interior spaces are softened with the introduction of Douglas fir plywood and wood.
Architizer chatted with T.J. McClure, Principal at Rhotenberry Wellen Architects, to learn more about this project.
Architizer: What inspired the initial concept for your design?
T.J. McClure: A West Texas vernacular. Located in the heart of the Permian Basin, many building and structures utilize straight forward solutions to combat and work with our natural surrounding. Typically, these solutions incorporate pre-engineered metal building structures with skins that are light, quick and easy to install while also being robust in nature to withstand the elements. Initially it was decided to incorporate a building that was constructed by similar means while maintaining a sense of refinement.

© Rhotenberry Wellen Architects
What do you believe is the most unique or ‘standout’ component of the project?
Maintaining a simple pallet of materials is probably the most critical component of the building. Once those materials were defined, the simple, well thought out detailing of those materials helped to accentuate that pallet of materials.

© Rhotenberry Wellen Architects
What was the greatest design challenge you faced during the project, and how did you navigate it?
The building is not a public building. From a zoning and use perspective, the local jurisdiction did not have a defined use for a facility such as this. Working through the use and definition of the building with local authorities proved a bit of a challenge. This challenge was meet with a series of meetings and conversations between the owner, architect and officials to essentially create a definition and use for this particular facility.

© Rhotenberry Wellen Architects
How did the context of your project — environmental, social or cultural — influence your design?
The physical context of the surrounding area played a major role in the design of the structure. Using local, and often used, construction systems, materials and techniques impacted the design in a major way.

© Rhotenberry Wellen Architects
What drove the selection of materials used in the project?
Local context, environmental and maintenance concerns, and lastly the overall appearance of the structure on it’s particular site.
What is your favorite detail in the project and why?
There are many details that I enjoy. On an overall basis, the execution of how varying materials come together is enjoyable in itself. Particularly, I enjoy the board formed concrete fireplaces. Being able to utilize a material both interior and exterior helps to bring the building together as a whole. Another detail that has a great presence is the lighting. The building has a wonderful glow about it during the twilight hours that really sets it apart from other facilities around the fields.

© Rhotenberry Wellen Architects
How important was sustainability as a design criteria as you worked on this project?
Sustainability is always an important design criteria for any project. The use of steel (in particular recycled steel) was one of the elements incorporated into the project. Concrete being able to the locally produced was another material that was incorporated for this reason.

© Rhotenberry Wellen Architects
In what ways did you collaborate with others, and how did that add value to the project?
The owner was involved in every step of the project. I think this lead to a finish product that will allow their enjoyment for a lifetime. The lighting design was also another element that required a huge amount of collaboration. Charles did a great job at navigating the approach both from a practical standpoint and from helping to provide a unique beauty to the project.
How have your clients responded to the finished project?
They love it! It’s helped to reinvigorate the sport of polo in our community. The project has also become a place for people to gather outside of the sport.

© Rhotenberry Wellen Architects
How do you believe this project represents you or your firm as a whole?
In our firm we are truly general practitioners. Before this project we had never designed a facility to support the sport of polo. We pride ourselves on having the ability to respond to unique challenges with unique and appropriate responses. This really is out goal with every project.

© Rhotenberry Wellen Architects
Consultants
Lighting Design: Archillume Lighting Design, Charles Thompson, FAIA Landscaping Design: Dunaway and Associates, Tim Hair
For more on A Home for Horses, please visit the in-depth project page on Architizer.



