Four Winds House by Brennan Furlong Architects
✕
Location: Sutton, Dublin, IrelandProject size: 2,155 square feet
Program: On the northern shore of Dublin Bay, looking across the water toward the low-slung city skyline, Brennan Furlong Architects transformed an inherited home for a returning expat couple and their children.
Design Solution: Four Winds was originally the clients’ grandparents’ home, and there were strong emotional memories attached to the structure and its garden. So the project evolved as a reflection on the concept of home, the intergenerational nature of our relationship to it, and the associated imprint on our environment.
Further considering the memory of place, the shallow bay where the house is located has a long history of being treacherous waters. Prior to the construction of two seawalls in the 18th and 19th centuries, storms sweeping north-westerly across the bay caused over 1,500 shipwrecks. Four Winds was conceived as a refuge from the storm—a cozy shelter where the family can hunker down in comfort and security. Pairing strong exposed concrete with warm timber, the house acts as a reassuring bulwark against the elements.
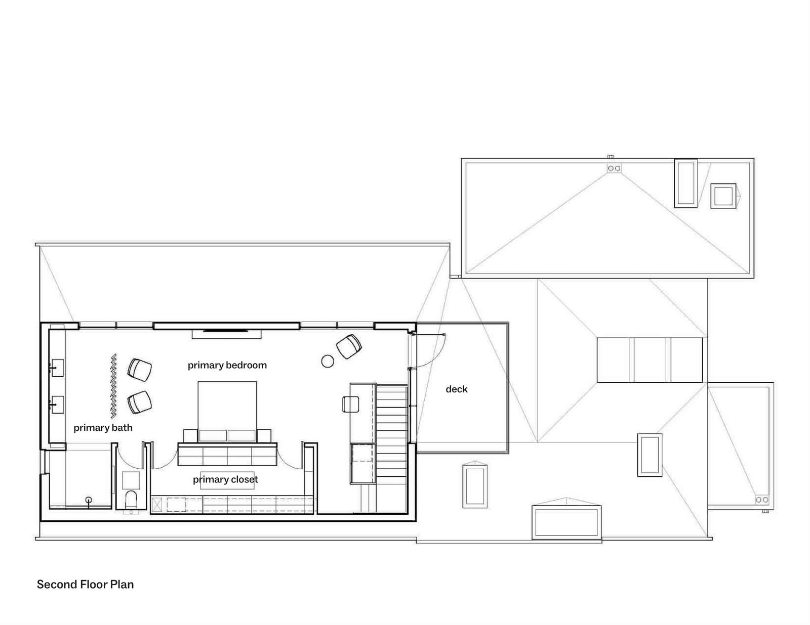
The plan is organized as a cruciform of primary spaces. Four exposed concrete pillars and two concrete beams define these spaces. The entrance is through the southeast end of the cruciform. Cutting southwest–northeast, the beams frame the dining and kitchen space, the primary space of the home, drawing the eye at one end toward the bay and at the other out to the garden. On the northwest side of the cruciform is a curved stair leading to the primary suite upstairs. A single-story bar extending into the garden houses the two children’s rooms, overlooking the relative calm of the sheltered courtyard.

Photo © Fionn McCann
Structure and Materials: Exposed concrete is the primary structural and organizational material. It is supplemented by softer materials—including Accoya timber for external joinery and charred larch for dormers—which, while durable, will weather and soften over time.
Additional InformationCompletion date: August 2024Site size: 0.39 acresTotal construction cost: $1.75 millionClient/Owner: Withheld










Drawings courtesy Brennan Furlong Architects; click to enlarge
Credits
ArchitectBrennan Furlong ArchitectsVernon House, 2 Vernon Avenue, Clontarf, Dublin 3, Ireland00-353-1-8747410 www.brennanfurlong.ie
Project TeamGareth Brennan, Seamus Furlong, principals; Grainne Keogh, Jozefina Godec, project architects; Paul Teeling, architetural technologist
EngineersCivil and structural: Donnelly Troy & Associates
Interior designerInteriors by Caroline
ConsultantsQuantity Surveyor: Costruction AdviceLandscaping: Eoin Gibbons, The Constant Gardener
General ContractorDevine Building Services
PhotographerFionn McCann
Specifications
Structural SystemExposed Concrete walls: Ballycroy ConstructionSteel structure of curved stairs: Metweld Fabrication
Exterior CladdingWood: Timber Ireland (Charred Larch cladding to dormers)
WindowsWood frame: Fitzpatrick & Henry JoinersEntrances, wood doors, sliding doors: Fitzpatrick & Henry Joiners
GlazingSkylights: Vindr VS
Interior FinishesCabinetwork and custom woodwork: Mooney Kitchens
LightingInterior ambient lighting: Wink! Lighting



