Divine House // Landry Smith Architect
Text description provided by the architects.
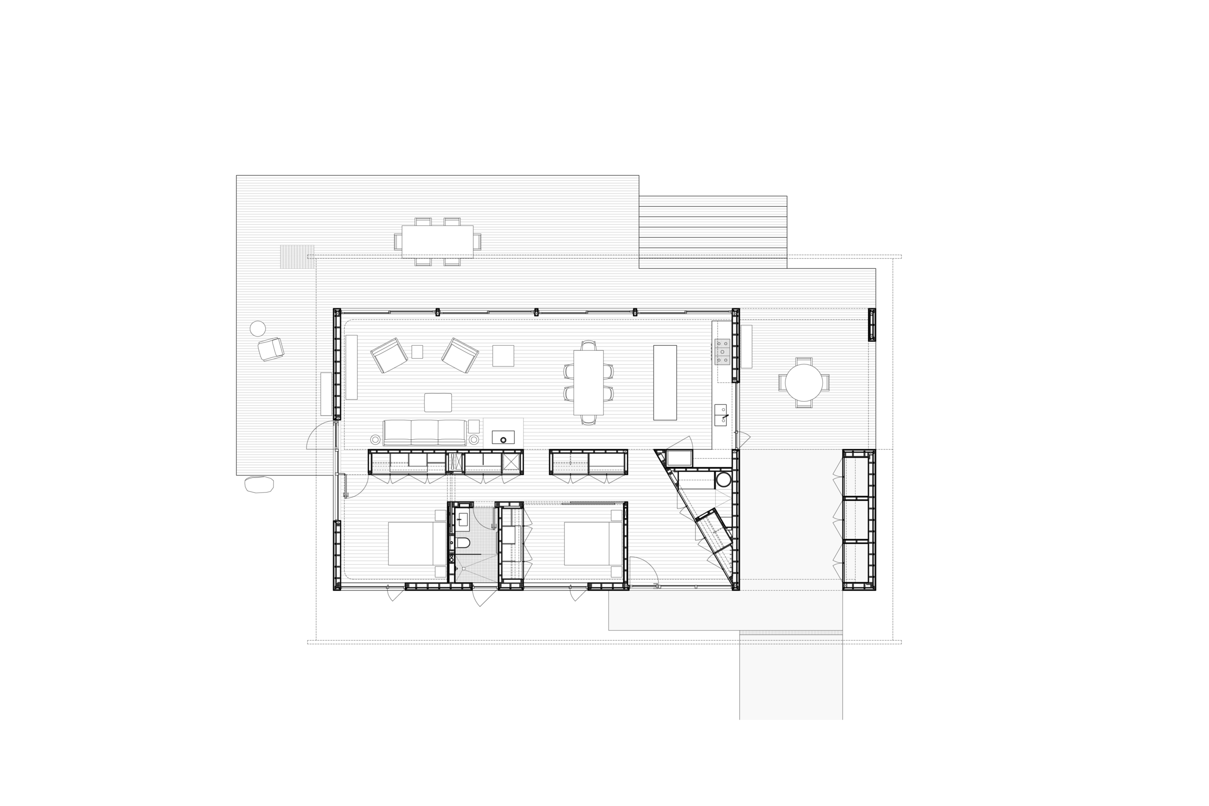
The Divine House is located outside of Eugene, Oregon and overlooks a dramatic bend along the McKenzie River. The house has a simple rectangular footprint and a gable roof with deep overhangs. It is directly organized down the centerline of the plan below the ridge. The northern half contains the smaller, more cellular programs — the carport, entry, guest area, bathroom, and primary bedroom.

© Landry Smith Architect

© Landry Smith Architect
The southern half is entirely open and includes the living and dining areas, kitchen, and adjoining covered deck. The width of the rooms and the generous depth of the overhangs was based on the maximum length of local Douglas fir structural members.
The spaces of the house are defined using a series of solid-reading volumes, which allow for multiple routes and notably free movement throughout the interior.

© Landry Smith Architect

© Landry Smith Architect
Contained within this highly articulated poche are storage areas for clothing and household items, mechanical spaces, as well as the laundry area and bath. The positioning of these volumes reinforces the organization along the ridgeline and establishes the distinct spatial character of the two halves of the plan. Sightlines were developed to provide a range of views both within and through the house and give an immediacy to the grounds without undercutting desired privacy (to the extent that the doors are largely rendered redundant).

© Landry Smith Architect

© Landry Smith Architect
Conceived as part of the main living room, a large hardwood deck extends out towards the river and will weather to a silver grey. The deck, which covers the same area as the house proper, works in tandem with the interior volumes to expand the field.The material palette and methods of construction are direct and robust.

© Landry Smith Architect

© Landry Smith Architect
The most prominent feature — the roof — is raw corrugated aluminum, which will oxidize and dull in appearance over time. It uses a concealed clip system installed over a grid of battens and counter battens, the latter of which also function as outriggers on the gable ends. Downspouts were omitted and rainwater comes directly off the roof corners, collected below grade and in a catch basin under the deck.

© Landry Smith Architect

© Landry Smith Architect
The siding is 130mm clear cedar planks, finished in black pine tar. They are furnished in full lengths over a fully vented counter batten assembly and key precisely into the building geometry. The interior is constructed in a similar fashion and given a similar finished expression — in this case, 130mm plain sawn white oak boards, again carefully synchronized with the openings and massing geometry.

© Landry Smith Architect

© Landry Smith Architect
The interior ceilings are installed over a lowered array of joists, lending greater intimacy to the spaces and concealing the beams at the ridge and the headered conditions along the north and south facades. The effect of suppressing the principal structure through this fur down focuses the view out towards the landscape and, in concert with the storage volumes, gives the interior a strong sculptural quality, all enveloped in a single material.

© Landry Smith Architect

© Landry Smith Architect
A hardwax oil was selected for the finish to maintain the raw appearance of the white oak..

© Landry Smith Architect

© Landry Smith Architect


