Three Taverns Imaginarium // Sq. Toes Studio
وصف نصي مقدم من المهندسين المعماريين.
خزانة من الفضول في العالم القديم تلتقي مع مصنع جعة حديث: هذا المشروع يدور حول الهروب إلى ذهن عميلنا ، صانع الجعة الإبداعي. كانت فلسفتنا المشتركة تتمثل في إبراز عملية صنع البيرة بطريقة مسرحية ، وإنشاء مساحة تشجع الزائرين على أن يكونوا فضوليين ويتبنون أنماطًا جديدة وأحيانًا غير عادية من البيرة.

© سكوير فيت ستوديو

© سكوير فيت ستوديو
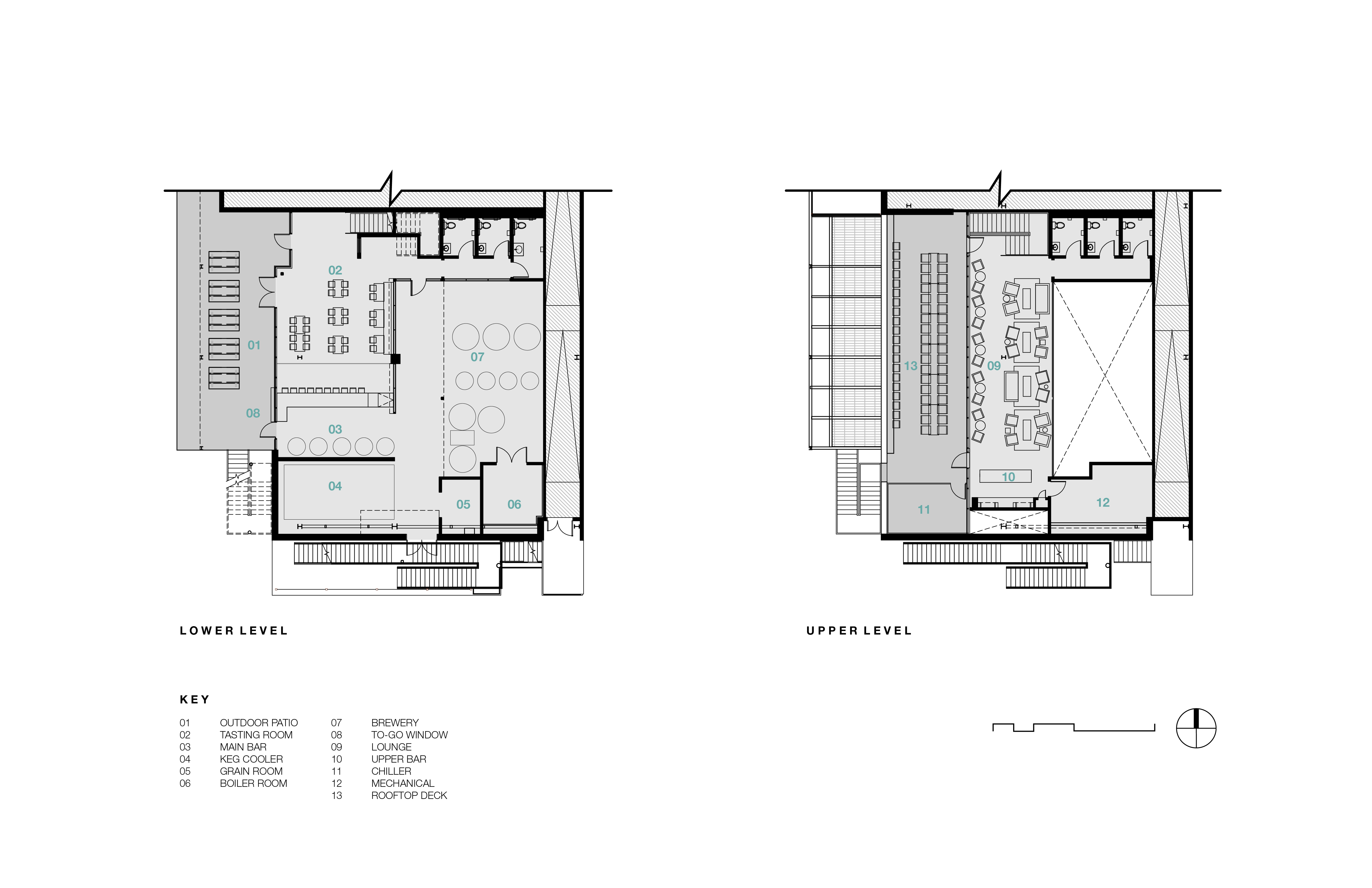
يقع في تطوير تاريخي لإعادة الاستخدام التكيفي ، كان حجم المساحة التي اختارها عملاؤنا مثاليًا لخزانات التخمير الكبيرة المصنوعة من الفولاذ المقاوم للصدأ. كان التحدي الأكبر الذي واجهناه هو العمل مع المساحة الصغيرة ولكن الطويلة لاستيعاب رغبة عملائنا في زيادة مقاعد الضيوف إلى أقصى حد. لذلك ، قمنا بتصميم طابق نصفي يسمح بمشاهدة عملية صنع البيرة الكاملة من مجموعة متنوعة من النقاط المتميزة.

© سكوير فيت ستوديو

© سكوير فيت ستوديو
عند الدخول ، تحدد سلسلة من نوافذ المصنع المعاد توجيهها غرفة التذوق وترسم الستار مرة أخرى على منطقة الإنتاج مثل مرحلة الفنون المسرحية. تم ترتيب صفوف من الخزانات المصقولة أسفل لوحة جدارية ذهبية مخصصة تشير ببراعة إلى العلم الجزيئي وراء صناعة البيرة. مثل أليس تتجه نحو حفرة الأرانب ، تتلألأ الألواح الزرقاء شديدة اللمعان في جميع أنحاء عربات السكك الحديدية القديمة ، وهي قادرة على نقلك إلى مكان وزمان آخر.

© سكوير فيت ستوديو

© سكوير فيت ستوديو
بعد الطابق العلوي على طول الدرابزين المكسو بالجلد ، تم وضع الطابق العلوي تحت هيكل المبنى القديم حيث أنشأنا صالة مليئة بالمقاعد الحميمة والإضاءة المتوهجة. على غرار طابق نصفي في المسرح ، يمكن للضيوف هنا الاستمتاع بفن التخمير من الأعلى أثناء النظر إلى منطقة الإنتاج.

© سكوير فيت ستوديو

© سكوير فيت ستوديو
لقد صممنا شريطًا أصغر حجمًا في الطابق العلوي كخزانة حقيقية للفضول ، مع استكمال الأدوات الصيدلانية والتماثيل الرهبانية ، في إشارة إلى صائدي Trappist في أوروبا. يتميز ورق الحائط المخصص بالفواكه والأعشاب ذات الألوان الزاهية المستخدمة في صنع البيرة اللذيذة المنتجة في مصنع الجعة ..

© سكوير فيت ستوديو

© سكوير فيت ستوديو






