ShuiFa Data City Property Exhibition Middle // aoe
وصف نصي مقدم من المهندسين المعماريين.
يقع المشروع في منطقة التنمية الاقتصادية Changqing ، على بعد 20 كم من وسط مدينة Jinan. لم يتم تطوير المنطقة على نطاق واسع بعد. البيئة المحيطة عبارة عن مزيج فوضوي من أبراج خطوط الجهد العالي التي تنتشر فيها الأعشاب الضارة. من أجل منح الزائرين أفضل تجربة مشاهدة ، قام المصمم بعزل المنطقة عن البيئة المحيطة وخلق مساحة مغلقة نسبيًا.
التصميم المعماري مستوحى من شعر وانغ وي في “مسكن الجبل في الخريف” ، “المطر يمر في الجبل البكر ، أمسيات الخريف المنعشة.

© aoe
يضيء القمر بين أشجار الصنوبر ، ويتدفق الربيع الصافي على الحجارة “. من خلال ترتيب من أربعة “أحجار” ، مثل تيار من مياه الينابيع الصافية المتدفقة من الشقوق في الصخور. تم تجميع الهيكل الرئيسي من ألواح مثقبة بيضاء متوهجة بزخارف ثقافية نقية وأنيقة. تم تصميم الحدود الشمالية مثل شلال جبلي ، جنبًا إلى جنب مع التصوير الدقيق الأخضر ، مما يمنح المبنى بأكمله جوًا من الرقي مليئًا بالأهمية الثقافية.
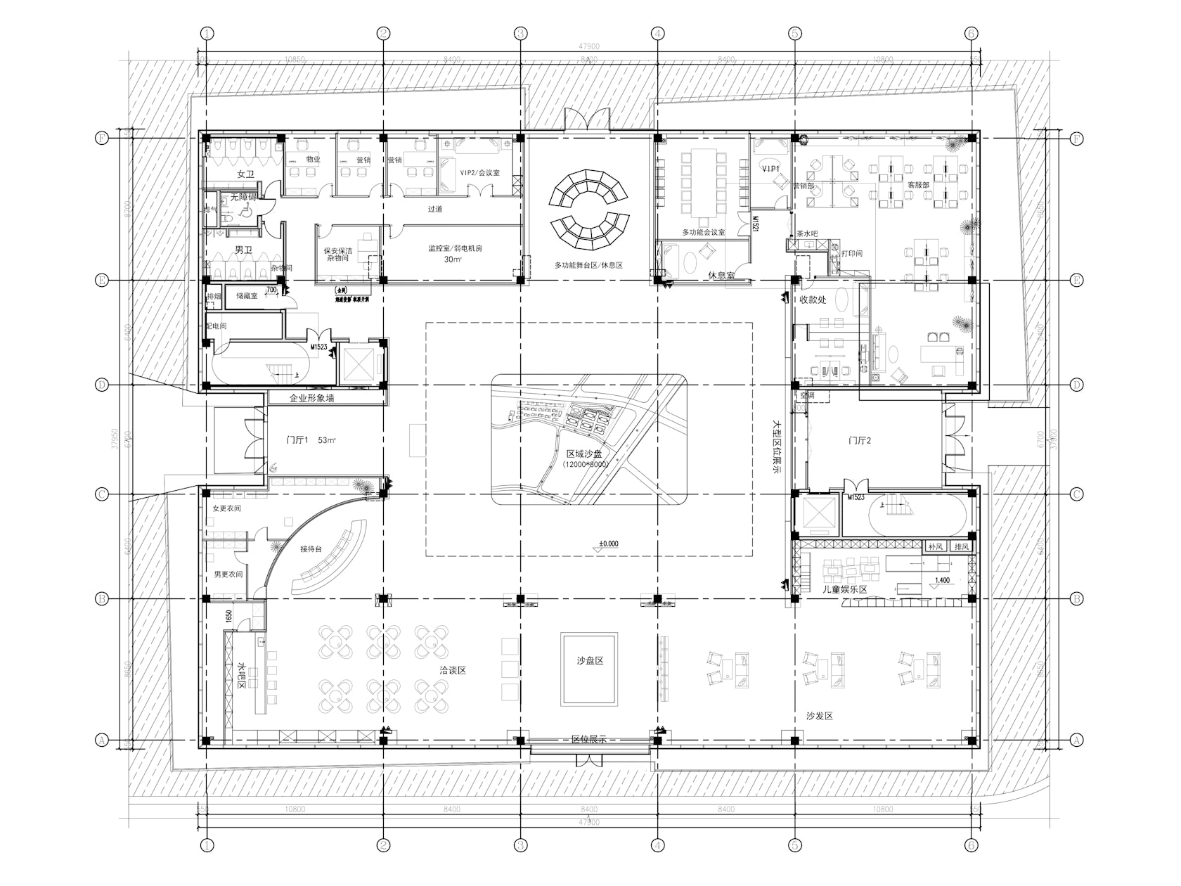
تتمثل الوظائف الرئيسية للمبنى في استضافة معارض المبيعات السكنية والمعارض العقارية والمكاتب.

© aoe
المدخل الرئيسي يقع في الجهة الغربية. من أجل القضاء على التأثير المرئي للبيئة المحيطة الفوضوية ، تم تصميم التلال الهندسية لتحيط بالمربع ، الذي يرتفع ببطء مع دخول الناس إلى الموقع ، مما يحجب المشهد تدريجيًا. تندمج الجبال والمياه والرخام معًا في هذه البرية غير المتطورة.
يتم وضع طبقة ثانية خارج الهيكل الرئيسي – طلاء مثقوب ، بحيث يتم تغليف المبنى بالطلاء المثقوب ، مما يشكل مساحة مغلقة نسبيًا.

© aoe
أقسام الحائط الساتر مائلة ومتداخلة ومتداخلة بالداخل ، وتشكل الفجوة بين الأقسام بشكل طبيعي مدخل المبنى. كل شيء يحدث داخل المساحة المغطاة بالجدار الساتر المثقب ، والمتصل بالعالم الخارجي فقط من خلال الفجوات غير المنتظمة. يحجب الطلاء الأبيض المثقوب الجزء الداخلي من المبنى ، ومع حلول الليل ، يسطع الضوء عبر الألواح المثقبة ليجعل المبنى بأكمله يتوهج ، مثل قطعة من الرخام اللامع تقف في البرية.
تتغير كثافة ثقب اللوح تدريجيًا من أعلى إلى أسفل وفقًا لوظيفة الجزء الداخلي للمبنى.

© aoe
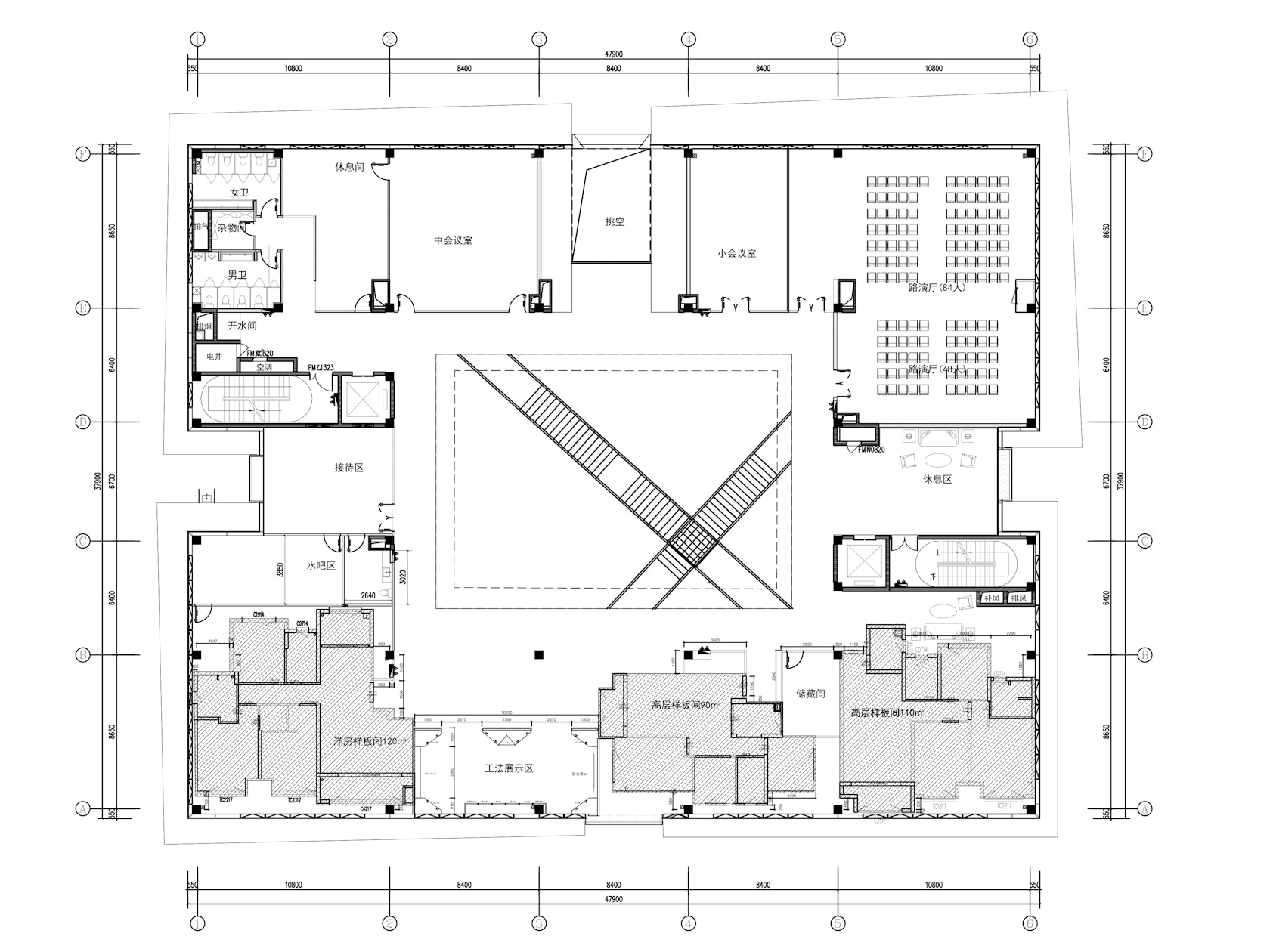
تتمثل الوظيفة الرئيسية للطابقين الأول والثاني من المبنى في مساحات العرض ، وبالتالي فإن كثافة الثقوب أعلى لمزيد من الشفافية. الوظيفة الرئيسية للطابقين الثالث والرابع من المبنى هي المساحة المكتبية ، والتي تتطلب بيئة خاصة نسبيًا ، وبالتالي فإن عدد الثقوب أقل ، ويكون مغلقًا نسبيًا مع ضمان الإضاءة الكافية.

© aoe
تسمح التغييرات التدريجية في الألواح المثقبة بنفاذية واجهة المبنى بالتغير تدريجيًا من أعلى إلى أسفل ، مما يعطي إحساسًا بالعمق للسطح الكلي للمبنى. الصفيحة المثقبة نفسها لها تأثير تظليل ، مثل طبقة من الجلد البيئي ، مما يجعل المبنى أكثر صداقة للبيئة.

© aoe
في الوقت نفسه ، فإن المساحة الرمادية المتكونة بين الجدار الزجاجي الساتر واللوحة المثقبة تثري التجربة المكانية للأشخاص داخل المبنى.
من حيث تصميم المناظر الطبيعية ، من أجل عكس سمعة جينان كمدينة الينابيع ، تم إنشاء مساحة كبيرة من المياه المتتالية على طول منطقة عرض الجادة الرئيسية ، حيث تتساقط المياه من درجات حجرية بارتفاع 4 أمتار.

© aoe
يقع المدخل الرئيسي لقاعة المعرض في الطابق الثاني ، مخفيًا خلف المياه المتدفقة ، ويمكن الوصول إليه من خلال جسر. على الجسر المتصل ، توجد مياه متدفقة من الخارج ، وبركة هادئة من الداخل تتمحور حول خشب الصنوبر الترحيبي. جانب واحد يتحرك والجانب الآخر هادئ ، مما يعكس حالة القمر الساطع الساطع بين شجرة الصنوبر ومياه الينابيع الصافية على الحجارة.

© aoe
عند دخول المبنى ، يتم جذب الزوار من البرية إلى الجنة.
يعد الجزء الداخلي للمبنى أيضًا امتدادًا للخارج ، حيث يمتد عنصر الطلاء المثقوب لمنطقة المدخل مباشرة من الخارج إلى الداخل. يعمل الردهة الكبيرة المكونة من أربعة طوابق كمنطقة رمل وتصبح النقطة المحورية للفضاء بأكمله.

© aoe
يأتي الضوء الطبيعي من المنور وتحيط به صفائح مثقبة ، مما يشكل مساحة مشبعة بشعور من الطقوس. تم إعداد نوافذ العرض على الألواح المثقبة المغلقة ، مما يسمح للأشخاص في الطابق العلوي بالاطلاع على الصندوق الرمل ، مع إعداد تباين يجعل المساحة أكثر حيوية.
الطابق الأول هو مركز معارض المبيعات السكنية.

© aoe
تمتد جدران المدخل الرئيسي ومنطقة الاستراحة متعددة الوظائف الشكل المعماري إلى الداخل ، مع استمرار التصميم النظيف والممتلئ. تجعل الردهة العالية المكونة من أربعة طوابق والمادة المثقبة على الواجهة مساحة الردهة رائعة للغاية ومذهلة. يعمل الجسرين المتصلين فوق الأذين على إضفاء الحيوية على المساحة بين الطوابق المختلفة ، بينما يعكس الجلد المصنوع من الفولاذ المقاوم للصدأ المرآة مساحة الردهة بالكامل ، كما لو كانت تطفو في الهواء.

© aoe
تسمح نوافذ العرض على الحائط الساتر للزوار بالإطلالة على الصندوق الرمل في الطابق الأول وزيادة الشفافية المكانية. يزيد الصندوق الرمل المنخفض التباين المكاني والشعور بالطقوس. تصميم الردهة له تأثير بصري قوي على الناس ، مثل الصندوق المعلق في الهواء.
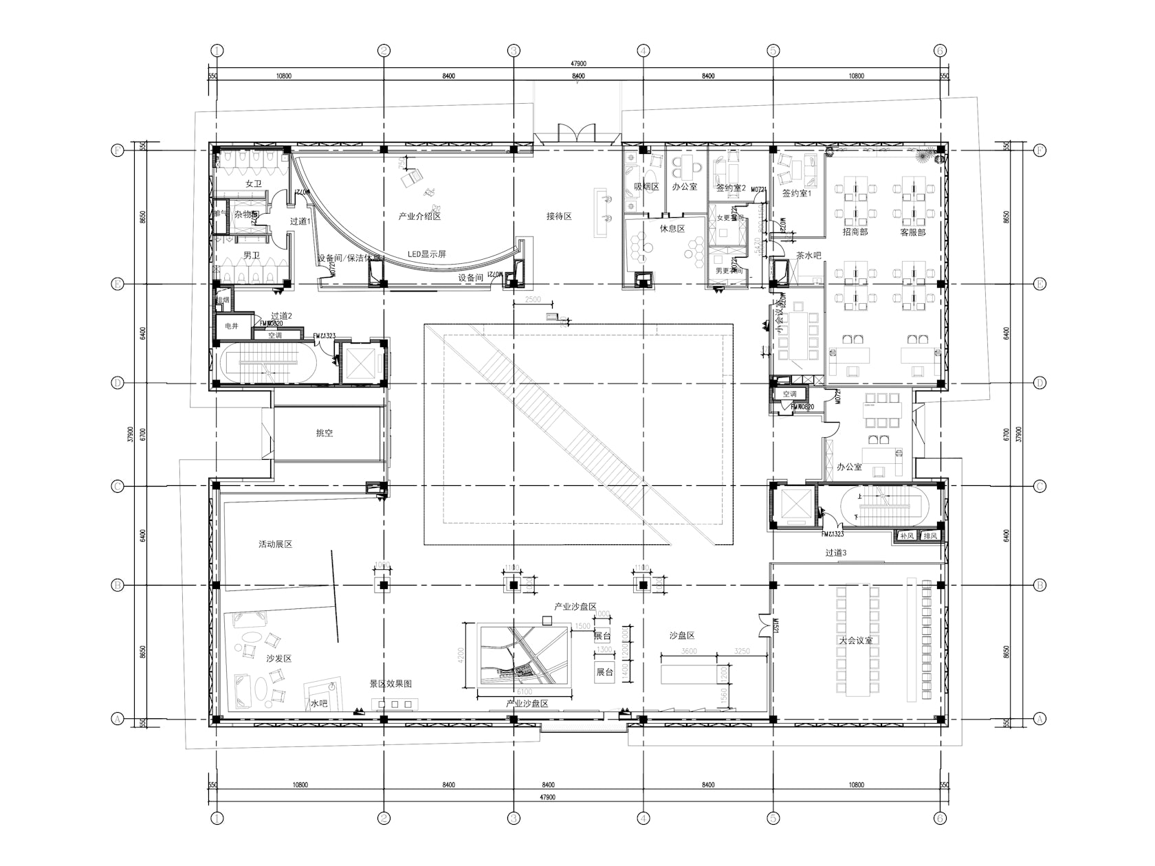
الطابق الثاني هو صالة عرض الممتلكات.

© aoe
تستخدم الواجهة الداخلية شكل المبنى لتوسيع الشكل الخارجي لمدخل المبنى إلى الداخل. تم تصميم الكفاف وفقًا لمخطط المبنى بأكمله. يمثل الجدار بأكمله شكلًا يشبه الأوريجامي ، مع موضوع معماري متسق. تتجسد نية “الكتلة الحجرية” في جميع أنحاء قاعة المعرض ، حيث تربط منطقة الاستقبال عند المدخل بمساحات العرض المختلفة على نفس المستوى ، في حين أن طي الجدار يخلق مجموعة واسعة من التنوع المكاني.

© aoe
تم تصميم الألواح المثقبة على واجهة الردهة لتوحيد التأثير المرئي للأتريوم ، مع نوافذ عرض موضوعة على الواجهة لتمكين الزوار في الطوابق والمساحات المختلفة من اكتشاف مناظير وتباينات مختلفة.
يتيح التصميم المتكامل للهندسة المعمارية والعرض والداخلية للمشروع بأكمله أن يكون متسقًا مع مفهوم التصميم.

© aoe
في حين أنها معزولة عن البيئة المحيطة ، فإنها تصبح أيضًا النقطة المحورية للمنطقة بأكملها ، مما يلبي متطلبات العرض كمركز معارض ومكتب مبيعات ، مما يوفر فرصًا جديدة لتطوير هذه المنطقة.
.

© aoe


