شارك (آل) يارد // reMIX – مجلة Architizer
وصف نصي مقدم من المهندسين المعماريين.
المشروع: co (al) -yard العام: 2019 الموقع: بكين ، الصينالحالة: مكتمل النوع: تجديد البرنامج: مكتب الحجم: داخلي 680 مترًا مربعًا ، حدائق 250 متر مربع العميل: خاص تصميم الإضاءة: Kaihe Studio استشاري الهيكل: Ji Lixin الأثاث: Bentu ، HayTeam: Chen Chen ، Nicola Saladino ، Federico Ruberto ، Alexandre Braleret ، Liu Yangyang ، Chen Si ، Chen Muzhi ، Zhang Mi ، Duan Jintong ، Chen Xinxing ، Chen Yuxuan ، Li Xin ، Rita Wang ، Wang Mengmeng يقع المشروع في الحي التاريخي Xuanwumen ، بكين.

© reMIX

© reMIX
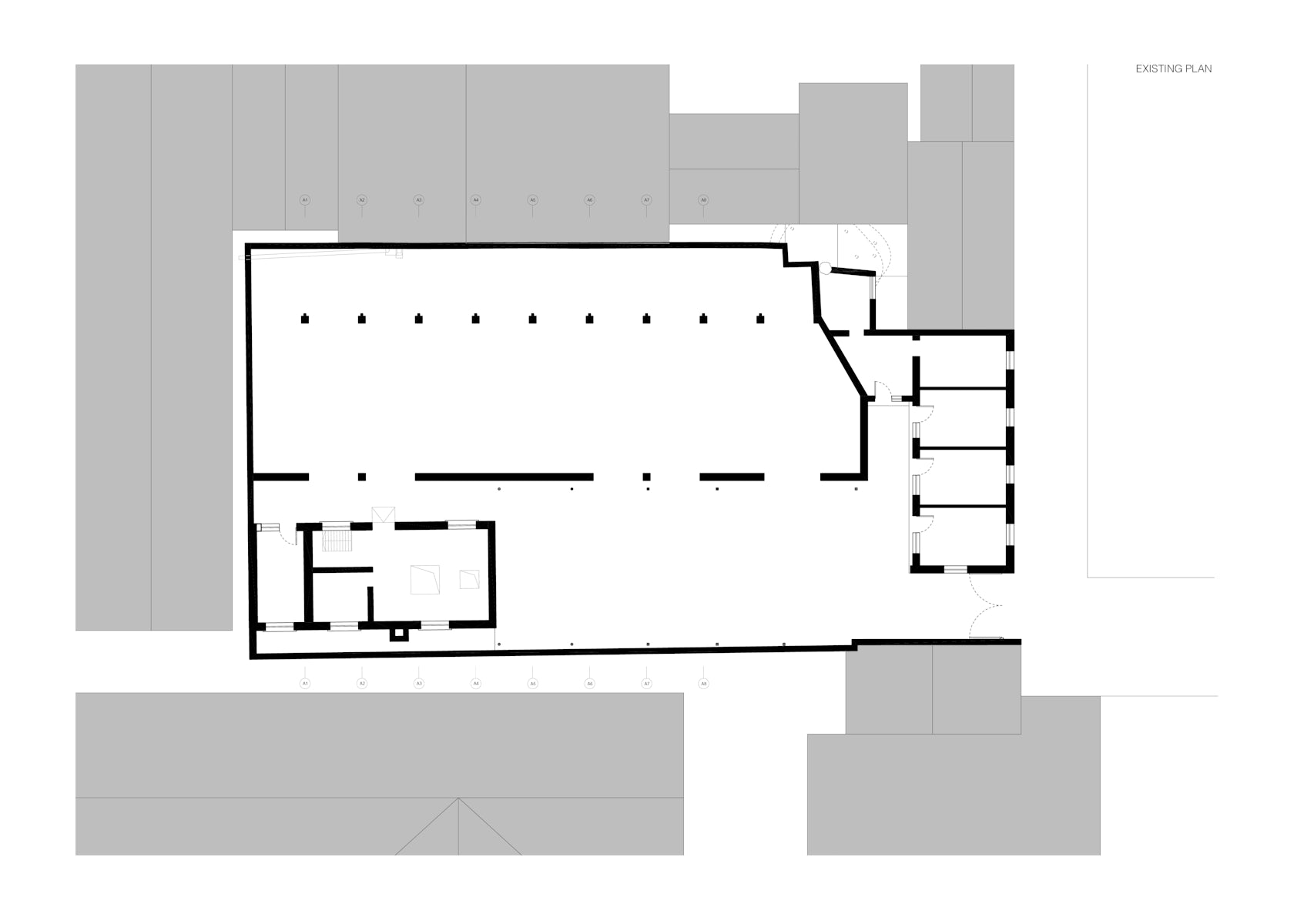
كانت الأرض مخبأة في زقاق هادئ صغير وتحيط بها مدرسة ابتدائية على الجانب الجنوبي الشرقي وكنيسة رومانية كاثوليكية مهمة على الجانب الغربي ، وكانت في السابق مشغولة بمصنع للفحم تم إيقاف تشغيله قبل عشر سنوات وترك مهجورًا منذ ذلك الحين.
تحت طبقة سميكة من الغبار الأسود الموروث من سنوات أفران بصق الرماد ، تمت تغطية مجمل مساحة قطعة الأرض تقريبًا ، تاركًا فقط فجوات ضيقة بين الأسطح المعدنية لإلقاء شفرة من الضوء على الأجزاء الداخلية.

© reMIX

© reMIX
بعد تحرير الفناء المركزي من هيكل السقف المعدني ، وقفت حوله ثلاثة مبانٍ ذات أنماط مختلفة للغاية: على الجانب الشمالي ، كان هناك منزل تقليدي مبني من الطوب الرمادي يحرس المدخل ، مثل آخر ما تبقى من نسيج hutong الأصلي ؛ في الغرب ، حوَّل مستودع به سلسلة طويلة من الجمالونات الخشبية المساحة السحيقة إلى بازيليك متداعية مليئة بالفحم ؛ أخيرًا ، في الطرف الجنوبي ، أخفى مبنى من الطوب الأحمر في قبو عميق الإنتاج الصناعي الصاخب.
كان هدف العميل هو إعادة تطوير قطعة الأرض التي تبلغ مساحتها 800 متر مربع إلى مساحة مكتبية مرنة تستهدف المكاتب الشابة والديناميكية.

© reMIX

© reMIX
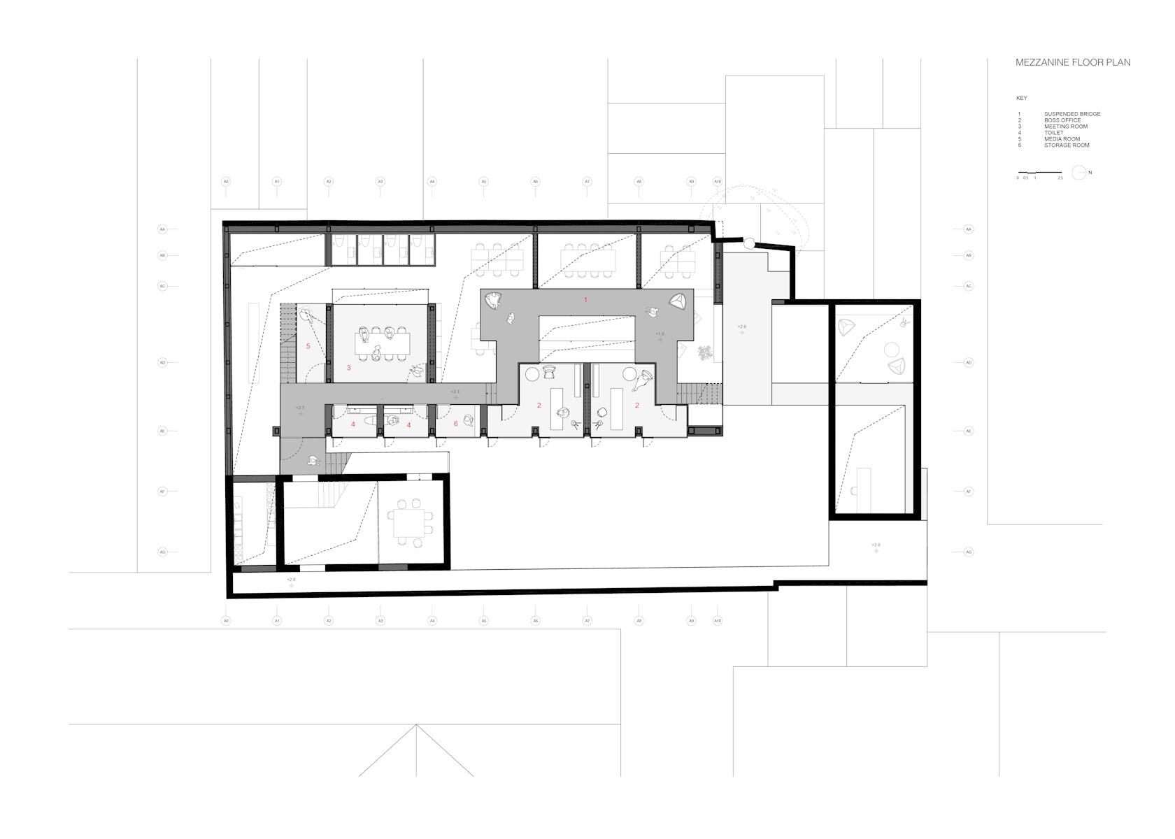
تضمن الملخص سلسلة من المتطلبات الوظيفية التي تتراوح من وحدات المكاتب الصغيرة التقليدية إلى مساحات العمل المفتوحة وغرف الاجتماعات ومنطقة تناول الطعام والمطبخ ، ولكن طُلب منا أيضًا تصميم التخطيط بطريقة تسمح للمستأجرين المستقبليين باستضافة الأحداث وتجمعات حشود كبيرة.
نظرًا لإرشادات الحفظ الصارمة لمركز مدينة بكين التاريخي ، كان على التجديد الحفاظ على حجم الفناء سليمًا لذلك يركز تدخلنا على واجهة جديدة مع الحديقة وإعادة تحديد المساحات الداخلية ، والحفاظ على جميع الأعمدة المحيطة بجدران الطوب وإعادة بناء سقف صناعي مائل بدون دعامات ، من أجل زيادة الإرتفاع إلى أقصى حد.
يتم تنظيم الوظائف كسلسلة من الصناديق بأحجام مختلفة مكدسة داخل الظرف الحالي ؛ تعتمد ارتفاعاتها المختلفة على وظيفتها ودرجة الخصوصية المطلوبة ويستجيب توزيعها لوتيرة الهيكل الأصلي.

© reMIX

© reMIX
توفر “الأحجام السلبية” بين الصناديق مساحات مرنة ذات ارتفاع مزدوج يمكنها بسهولة دمج متطلبات وظيفية جديدة في المستقبل وإنشاء إيقاع مثير للاهتمام من عمليات الضغط وإلغاء الضغط على طول المحور الرئيسي.
تم نحت السطح في عدة مواقع لتشكيل آبار إنارة وحدائق داخلية ، ونشر الضوء المنتشر في جميع مناطق العمل وإيجاد مناظر جديدة تجاه المناطق المحيطة.

© reMIX

© reMIX
تساعد الفناءات الزجاجية الجديدة على تنظيم المجالات الوظيفية وتوسيع العمق المدرك ، ومضاعفته من خلال سلسلة من الانعكاسات. فهي لا توفر الإضاءة الطبيعية والتهوية للعمق الكامل للمبنى فحسب ، بل تعمل أيضًا كأجزاء مغلفة من الطبيعة يمكن للمرء أن يتأملها أثناء العمل: غصن شجرة مقطوع من رقعة مربعة من السماء ، انعكاس للشمس على السطح. صليب رخامي للكنيسة المجاورة …
أخيرًا ، يتعرج شريط فولاذي داكن مستمر عبر المشروع بأكمله للتنقل عبر المباني الثلاثة والاتصال بها ، مع تكوينات متعددة: مدخل استقبال ، أو ممر مغطى ، أو طابق نصفي معلق في الفضاء المركزي أو درج يؤدي إلى شرفة السطح.

© reMIX

© reMIX
هذا الشريط من الفولاذ هو التجسيد المادي للدوران الجديد وكذلك ذكرى الماضي الصناعي للمباني ..

© reMIX

© reMIX






