A-Frame Club // Skylab
Text description provided by the architects.
The A-Frame Club is a new hotel brand, both modern and nostalgic, that takes design cues from 1970s American ski culture and the iconic A-frame cabins of that era. The first Club will consist of 31 newly constructed cabins along with a bar and restaurant in a historic saloon building, located in the Old Town neighborhood of Winter Park, Colorado.

© Skylab
Situated on a two-acre wooded site adjacent to the Fraser River, the stand-alone cabins will be nestled among mature pine trees and connected by a network of boardwalks, providing solitude and comfort to guests, and fostering a relaxing atmosphere after a day skiing or mountain biking.
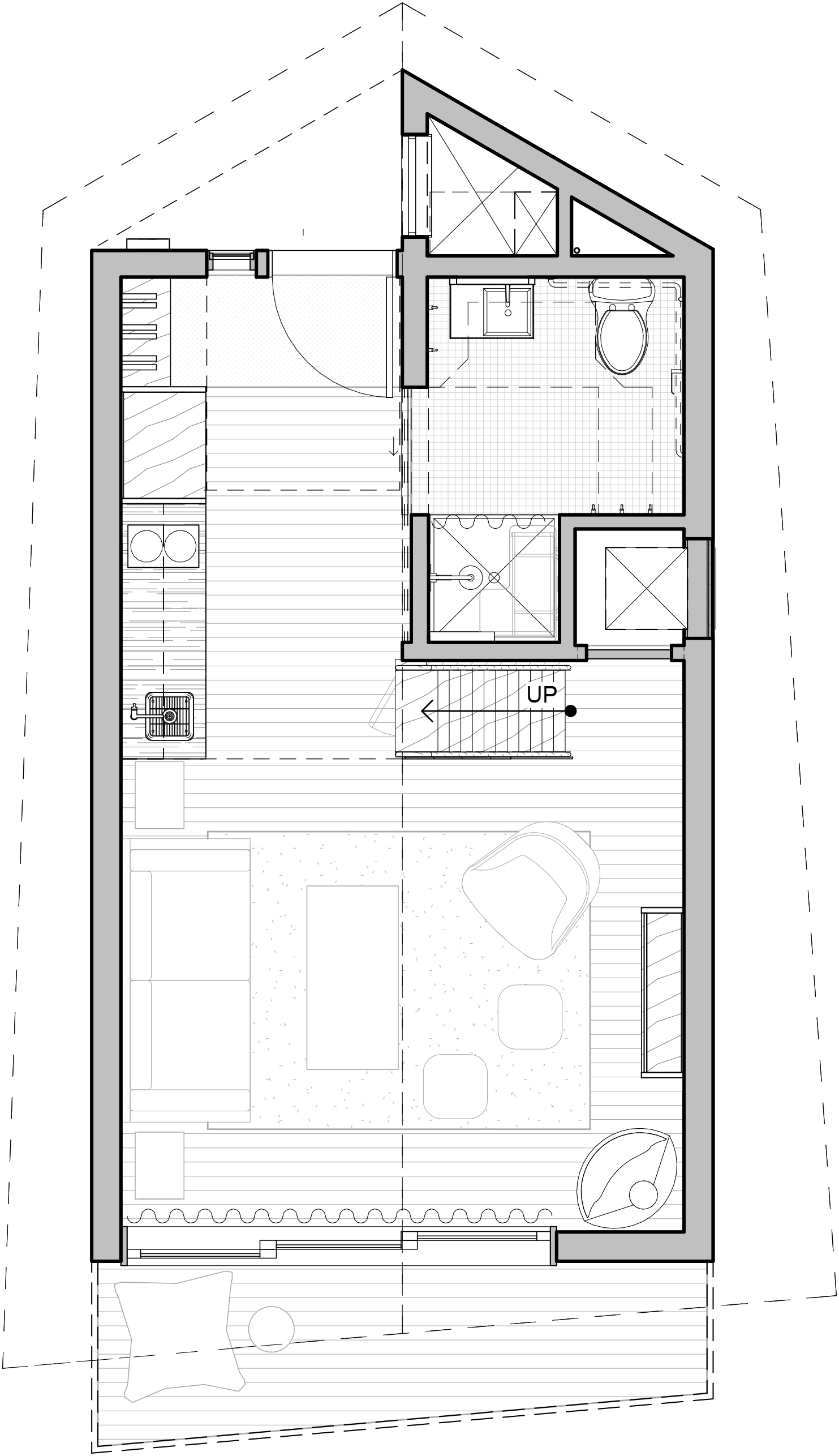
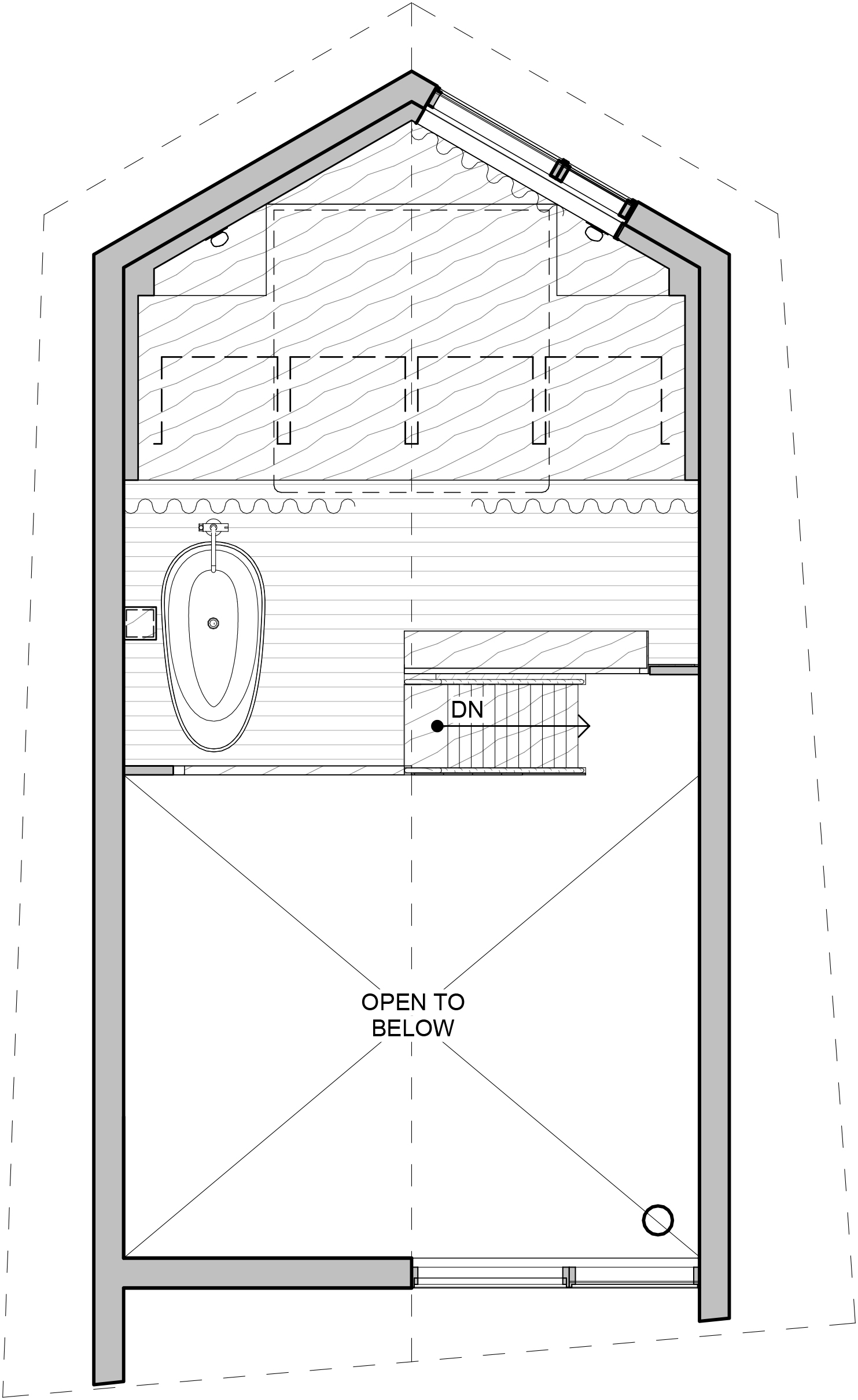
The cabins will each be 450 square feet in size and include a main floor living room, entry, bathroom, kitchenette, and a lofted bedroom.

© Skylab
Each cabin will be equipped with custom Malm fireplaces and vintage furnishings. Walls will be lined with warm-toned cedar panels and custom millwork. Set on low piers, each cabin will be elevated above the ground to enhance views and to lightly touch the land. Tall glass windows allow natural light to permeate and highlight mountain vistas.

© Skylab
“The concept behind A-Frame Club,” notes Skylab, the architectural firm for the project, “is to provide a modern take on a-frame ski lodging while touching lightly on the land. All of the cabins and walkways are elevated to maintain the trees and natural watershed of the site.” The cabins are designed for adaptability.

© Skylab
The lofted bed will be accessible by a ship’s ladder, and the living room couch will fold out as an additional bed to accommodate families. Guests will be in control of their space and comfort, from individual keypads for self-check-in to simple, automated controls for heating, cooling, and lighting. “The design,” adds Skylab, “pushes beyond the tradition of Colorado ski hut lodging by embracing sustainability and contemporary prefabrication strategies.” Community spirit will be supported through a 9,190-square-foot central gathering venue for guests and locals alike called, The Lodge.

© Skylab
Food and beverages will be served daily for guests to enjoy to-go or on the adjacent patio with pergola and fire pits. A variety of experiential zones will be created for a mix of drinking, eating, socializing, and working. Curated with tongue-in-cheek novelty and a mid-century vibe, The Lodge will be a space that is both classic and novel. A-Frame Club is expected to be completed for the 2021/2022 winter season.

© Skylab
Project Team Architecture: Skylab Architecture Interior Design: Skylab Architecture Civil Engineer: Bowman Structural, Mechanical, Electrical Engineer: Resource Engineering Group (REG) Geotechnical Engineer: KC Hamilton Engineering, Inc Branding: Wunder Werkz Client: Zeppelin Development Skylab Design Team: Jeff Kovel, Design Director Brent Grubb, Principal in Charge Robin Wilcox, Project Director Conor Wood, Project Architect Jeni Nguyen, Project Designer Amy DeVall, Interior Designer Nick Trapani, Visualizer/Project Designer Eduardo Peraza Garzon, Visualizer .

© Skylab




